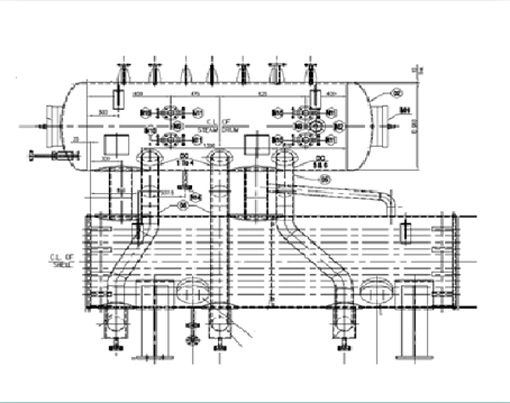
Waste Heat Recovery Boiler

We have been recently Certified by Engineers India Limited ( EIL) for the Shell & Tube Waste Heat Recovery Boilers WHRB are fire tube industrial boilers equipped with advanced instrumentation to deliver maximum possible heat recovery.
These boilers are ideal to recover heat from flue Gas, incinerators, blast furnace exhausts etc. They enhance the system efficiency and help save fuel and money. Waste Heat Recovery Boilers are designed for easy inspection and maintenance.
Trust Well Engineers (India) Pvt. Ltd. has executed several Prestigious boiler projects.

Trust Well Engineers India_Waste Heat Recovery Boilers

Key Features :


  • We are Enlisted company by Engineers India Limited (EIL) & IBR for the Waste Heat Recovery Boilers manufacturing.
  • Our WHRBs are suitable for Waste Flue Gases from furnace, incinerator exhaust gas from steel industries and any type of flue gases having temperature above 500 ̊c
  • The Payback period of Waste Heat Recovery Boiler is less than 1 Year.
  • Tailor made design to suit customer requirements.
  • Complete Shop built Assembly (For fire tube boiler) which reduces site work.
  • WHRB design & manufacturing for variety of complex and exotic high-sulfur exhaust gases.
  • A Specially Designed Knuckle Tube Sheet is utilized to prevent tube-to-tube sheet joint failures.
  • To avoid the formation of steam blanket near to the front Tube sheet, we've incorporated specially designed system.
  • Design suitable for Liquid Waste firing directly in boiler instead of incinerator route.
  • All statutory/ Govt. IBR requirements are taken care by us.
  • Orbital welding and fluorescent DP testing are fundamental competencies essential for ensuring best quality. Highly Robust Construction.
Trust Well Engineers India_Waste Heat Recovery Boilers

Application

1) Furnace exhausts- In metallurgical, petroleum and petrochemical, chemical industry.

2) Incinerator exhausts- process, petroleum and petrochemical, chemical industry.

3) Boiler exhausts- In power, food, pharmacy, process, sugar, distillery, paper, petroleum and
petrochemical, chemical industry. Specific experience on CS2 process WHRB



We also design and manufacture Tailor-made WHRB

Trust Well Engineers India_Waste Heat Recovery Boilers
Design Data Design Consideration:
Design & Construction Code IBR 1950 with Latest Amendments Max utilization of waste energy.
Boiler Type Waste Heat Recovery Boiler Optimum heat transfer coeff.
Capacity At maximum Effective online cleaning Systems
Design / Working Pressure 47.0 Kgf/cm2¬(g) Proven performance.
Design Temperature Saturated / Superheated Proven construction.
HYD. Test Pressure 1.5 times of WP Rugged.
Total Heating Surface Area As per available heat duty Ease of operation.
Ease of maintenance.
Flexibility in layout can be considered to suit site layout.
Client Solution Provided Details Year
Indian Farmers Fertiliser Cooperative Limited (IFFCO) Finned Tube Radiator We have designed and manufactured a Finned Type Radiator of capacity 54 Lac Kcal/Hr
Heat Transfer Area: 2602 m2
Hydro test Pressure: 30 kg/cm2
Temperature : 240 deg. C
2010
Gujarat Narmada Valley Fertilizers & Chemicals (GNFC) Waste Heat Recovery Solution for 180 Tonnes/Hr BHEL Boiler Gilled tube Heat Exchanger / Module No 3 for Flue gas heat recovery unit, Water Preheating using Flue gases of BHEL Boiler
Design Pressure: 10.5 kg/cm2
Hydro test Pressure: 15.75 kg/cm2
Temperature: 172.9 Deg. C
Heating Surface Area is 1663.3 Sq. meter
2017
Rashtriya Chemicals and Fertilizers Ltd (RCF) Deaerator for Sulphuric Acid Plant and CI Gilled Economizer Design, manufacturing and supply of Deaerator tank along with storage tank for the Sulphuric Acid Plant.
Rated Capacity: 21,000 kg/hr
Deaerator Output Temperature : 105 deg. C
2018
Indo Baijin Chemicals Pvt. Ltd. Waste Heat Recovery Boiler (WHRB) We have designed and supplied a Waste Heat Recovery Boiler for their Sulphur Recovery unit (SRU) in the petrochemical industry.
Rated Capacity: 15 TPH @ 47.08 kg/cm2
Hydro test Pressure: 70.62 kg/cm2
Temperature : 340 deg. C
2018
Jasubhai Engineering Ltd. (End user - United Phosphorus Ltd.) Waste Heat Recovery Boiler (WHRB) A complete package of Waste Heat Recovery Boiler, Deaerator, Economizer and Chimney.
Rated Capacity: 20 TPH @ 5 kg/cm2
Hydro test Pressure: 7.5 kg/cm2
Temperature : 146.5 deg. C
2018
Satish Dhawan Space Centre (ISRO) Waste Heat Recovery Boiler This boiler was Nitric Acid Heat Recovery which designed, manufactured, Supplied and erected by TWE
Rated Capacity: 2.5 TPH @ 25 kg/cm2
Hydro test Pressure: 37.5 kg/cm2
Temperature : 350 deg. C
2021
SI Group-India Pvt Ltd Waste Heat Recovery Boiler (WHRB) We have designed and supplied a Waste Heat Recovery Boiler for Hydrocarbon Gases.
Rated Capacity: 2.5 TPH @ 10 kg/cm2
Hydro test Pressure: 15 kg/cm2
Temperature : 260 deg. C
2021
Aarti Drugs Ltd. Complete Boiler Package We have designed and manufactured a complete boiler package including Coal Handling, Ash Handling, SO2 Scrubber.
Rated Capacity: 25 TPH @ 45 kg/cm2
Hydro test Pressure: 75 kg/cm2
Temperature : 480 deg. C
Supply In Progress

Let us work towards your success

Join the team of winning people.
Contact Us